Bahnhofstr. 24

53925 Kall

02441-7777 820

Für Sie erreichbar

Mo. - Fr. 09:00 - 17:00

und nach Vereinbarung

Bahnhofstr. 24

53925 Kall

02441-7777 820

für Sie erreichbar

09 - 17 Uhr

+ nach Vereinbarung

20 Fotos und Anhänge ansehen
Immobilien Günter Wolter e.K. Inhaber: Klaus Midden
Bahnhofstr. 24, 53925 Kall
Klaus Midden

Geschäftsführer

Teilen

Portalbild

Zuwegung zum Hauseingang

Hauseingangstür

Eingangsdiele

Küche

Wohnzimmer

Essbereich

Schlafzimmer

Bad en Suite

Gäste WC

Flur Erdgeschoss

Gästezimmer Erdgeschoss

Zimmer Erdgeschoss

Bad Erdgeschoss

Hobbyraum

Garage

PV-Anlage (Wechsler)

Ansicht Rückseite

Ausblick

Immobilien Günter Wolter e.K. seit 1991

Einfamilienhaus in erstklassiger Lage von Hellenthal (Eifel)

Eckdaten

  • Art Einfamilienhaus
  • Lage 53940 Hellenthal
  • Kaufpreis 296.000,00
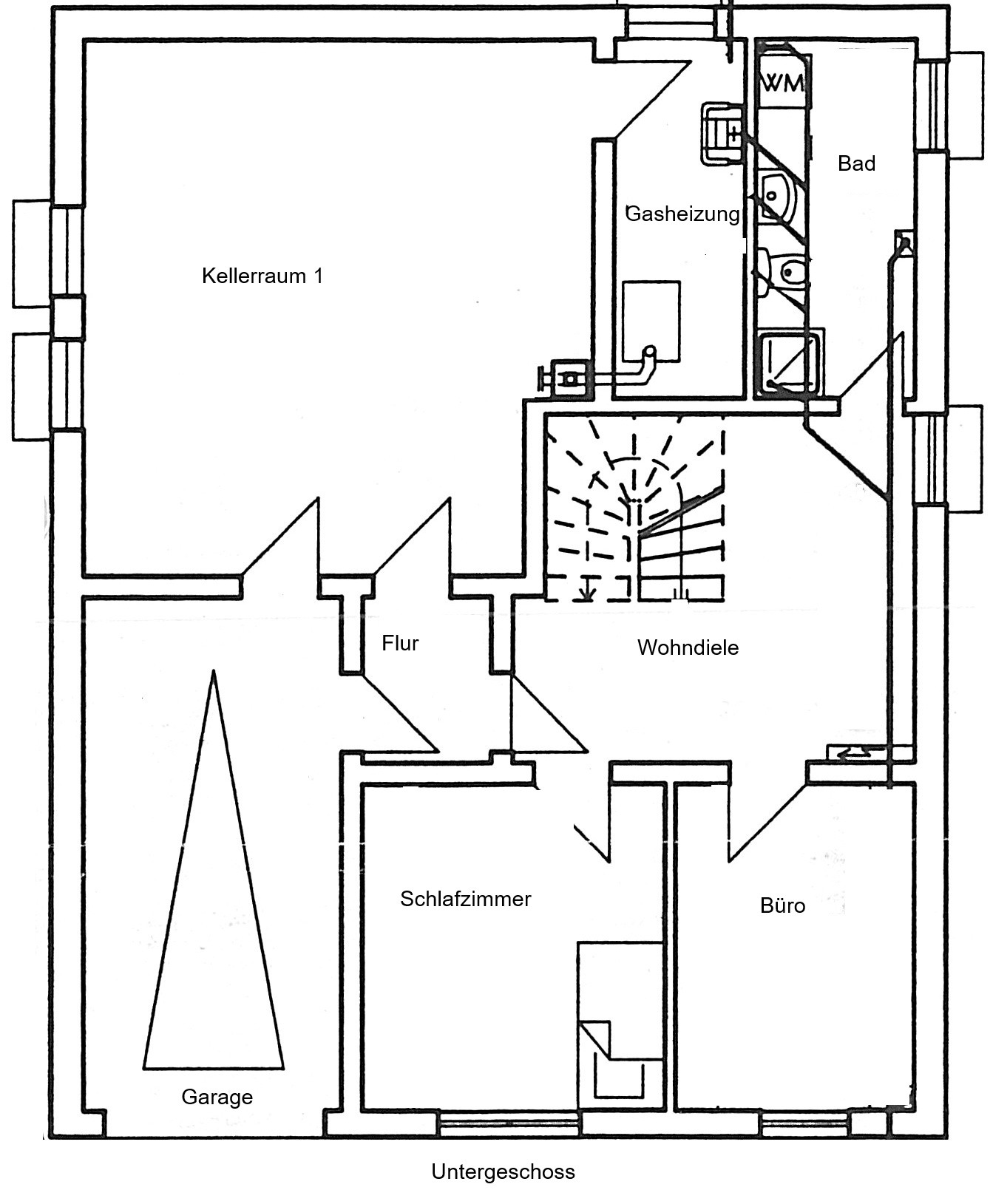
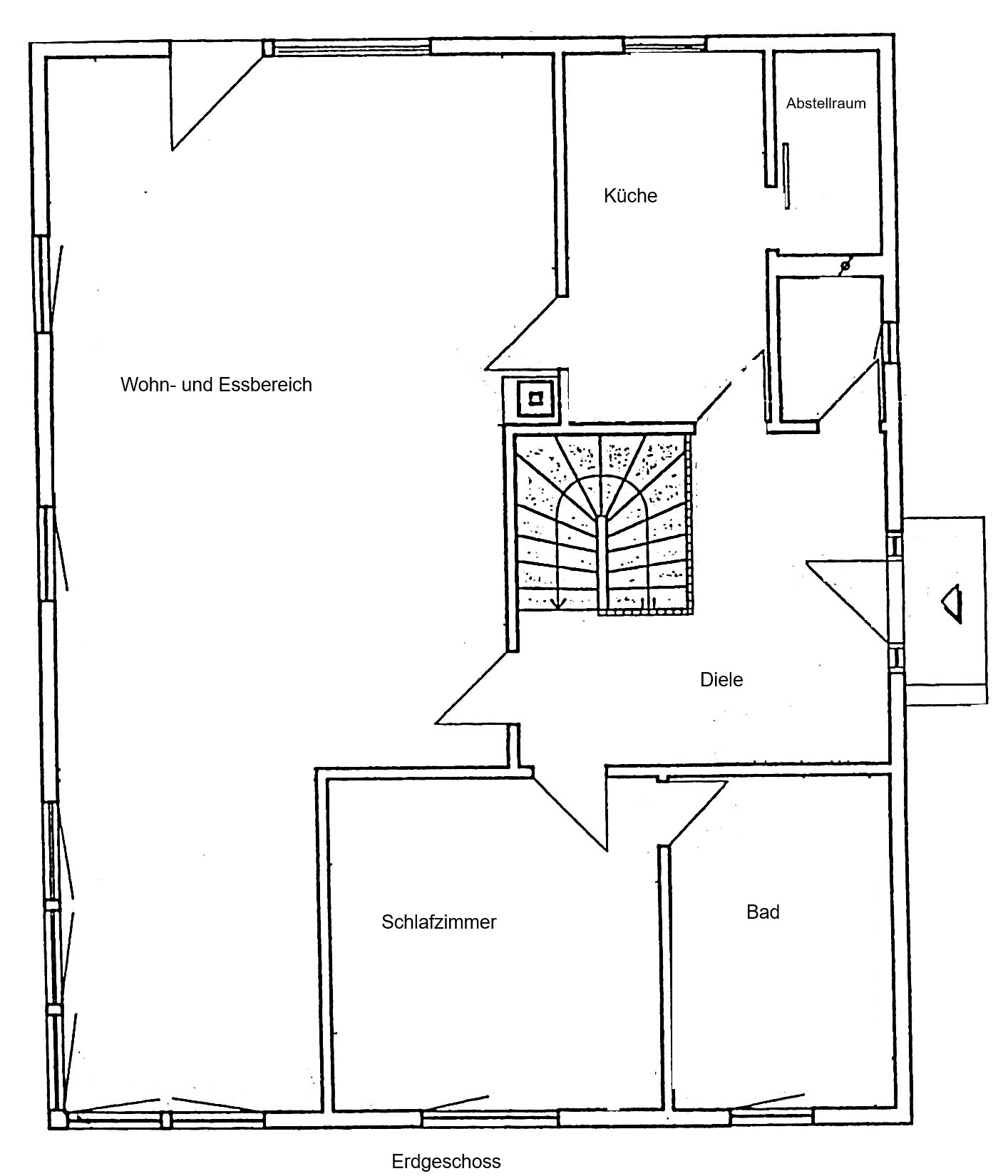
  • Wohnfläche ca. 157
  • Grundstück ca. 552
  • Zimmer 5
  • Baujahr 1996
  • Nutzfläche ca. 57
  • Etagenzahl 2
  • Heizungsart Gas-Heizung, Zentralheizung
  • Einbauküche nein
  • Gäste-WC ja
  • Stellplatztyp Aussenstellplatz
  • Stellplatzanzahl 1
  • Garagenanzahl 1
  • Bezugstermin nach Vereinbarung
  • Bodenbelag Fliesen, Laminat
  • Ausstattung des Bades Dusche, Fenster, Badewanne
  • Zustand Gepflegt
  • Immobilien-ID H26-477
  • Provision 3,57 % inkl. MwSt.

Immobilie

Ruhig, naturnah und mit einem beeindruckenden Weitblick auf das „Hellenthal“ – dieses Einfamilienhaus bietet sowohl jungen Familien als auch Ferienhausinteressenten ideale Voraussetzungen. Die klar gegliederte Raumaufteilung mit großzügigem Wohn- und Essbereich, Elternschlafzimmer mit Bad, drei weiteren Zimmern im Untergeschoss sowie einer integrierten Garage macht das Haus besonders flexibel nutzbar.

Das Haus wurde als Streif-Fertighaus errichtet, ist voll unterkellert und befindet sich in einem sehr gepflegten Zustand. Größere Investitionen sind aktuell nicht erforderlich. Der renovierte Wohnbereich, die Terrasse und der überdachte Freisitz bieten zusätzlichen Komfort und eine ruhige Nutzungsmöglichkeit im Garten.

Die auf dem Dach installierte Photovoltaikanlage (ohne Speicher) ist im Kaufpreis enthalten. Nach Angaben der aktuellen Bewohner deckt sie den Strombedarf nahezu vollständig über die Einspeisevergütung, sodass praktisch keine Stromkosten anfallen.

Dieses Haus ist kurzfristig bezugsfertig und bietet für weniger als 300.000 € eine attraktive Alternative zu einem Neubau, der in Hellenthal üblicherweise zwischen 450.000 € und 650.000 € liegen würde. Besichtigungstermine können nach Vereinbarung durchgeführt werden.

Lage

Zum Ort:
Hellenthal ist ein sogenannter Kernort mit eigenständiger Gemeinde. Hellenthal selbst hat ca. 2200 Einwohner und ist insbesondere durch die Oleftalsperre, das große Wildfreigehege sowie die grenznahe Lage zu Belgien bekannt. Auf unsere schöne Landschaft mit sehr viel Wald, Wasser und Bergen möchten wir nicht weiter eingehen. Wer in die Eifel möchte, weiß bestimmt alle Vorzüge zu schätzen.
In Hellenthal gibt es fast alle Einkaufsmöglichkeiten, Cafe's, Restaurants, Kneipen uvm.. Kindergarten, Grund- und Hauptschule sind im Ort, weiterführende Gymnasien und Realschule befinden sich im 6 km entfernten Schleiden, wohin sehr gute Schulbusverbindungen bestehen.
Die ärztliche Versorgung ist jederzeit sichergestellt, das nächste Krankenhaus und viele Fachärzte befinden sich ebenfalls in Schleiden.
Zur Verkehrsanbindung: die A1 erreichen Sie in ca. 30 Minuten und den nächsten DBB-Anschluss in Kall an der Hauptstrecke Köln – Trier in ca. 15 Minuten. In der Eifel ist je nach Tätigkeit der Zweitwagen fast ein Muss.

Ausstattung

Bauweise:

Das junge Einfamilienhaus wurde in solider Fertigbauweise von der renommierten Firma Streif errichtet. Die Baukonstruktion überzeugt insgesamt durch ihre hohe Qualität, Stabilität und Langlebigkeit. Die gelungene Kombination aus massiv errichtetem Kellergeschoss und energetisch effizientem Fertigbau im Erd- und Obergeschoss verleiht dem Haus eine robuste Substanz, sowie einen modernen und wertigen Charakter.

Dacheindeckung:

Das Gebäude verfügt über ein massiv ausgeführtes Walmdach, das mit langlebigen Betonziegeln eingedeckt ist. Diese Bauweise gewährleistet eine besonders witterungsbeständige und stabile Dachkonstruktion. Zudem befindet sich eine PV-Anlage auf dem Dach.

Fassade:

Die Fassade ist als hochwertige, witterungsbeständige Putzfassade ausgeführt. Das Untergeschoss präsentiert sich straßenseitig mit einer ansprechenden Klinkerfassade, die dem Haus zusätzliche Wertigkeit verleiht.

Fenster:

Die verbauten Kunststofffenster mit Doppelverglasung bieten eine gute Wärmedämmung sowie eine effektive Reduzierung von Außengeräuschen. Die Kombination aus modernen Kunststoffrahmen und Isolierverglasung trägt wesentlich zur Energieeffizienz und zum angenehmen Wohnkomfort bei.

Heizung und Warmwasseraufbereitung:

Die Warmwasseraufbereitung erfolgt klassisch über Durchlauferhitzer. Die Beheizung des Hauses erfolgen über eine moderne Gasbrennwertheizung aus dem Jahr 2009. Diese sorgt für eine gleichmäßige und effiziente Wärmeversorgung sämtlicher Wohnräume im Erd- und Obergeschoss.

Keller Gäste-WC Terrasse vorhanden Einbauküche Rollladen vorhanden

Sonstiges

Die Angaben zum Objekt stammen vom Verkäufer. Trotz sorgfältiger Prüfung können wir für die Richtigkeit keine Gewähr übernehmen. Irrtum und Auslassungen bleiben vorbehalten, im Übrigen verweisen wir auf unsere Allgemeinen Geschäftsbedingungen. Die beigefügte Zeichnung und Darstellungen können durch Vergrößerungen / Verkleinerungen unmaßstäblich sein und sind als Handskizzen zu verstehen. Angaben zu Flächeninhalten und Kubatur sind ca. Angaben. Das Angebot ist nur für den Empfänger bestimmt und vertraulich zu behandeln, ansonsten besteht Haftung für die Provision. Diese Offerte ist freibleibend. Zwischenverkauf und Preisänderungen bleiben ausdrücklich vorbehalten.

Energieausweisangaben

A+
A
B
C
D
E
F
G
H
  • Enerigeausweistyp Verbrauchsausweis
  • Energiekennwert 90 KWh(m²*a)
  • Energieeffizienzklasse C
  • Energieausweis erstellt am 03.08.2022
  • Energieausweis gültig bis 02.08.2032
  • Heizungsart Gas-Heizung Zentralheizung
  • Befeuerung / Energieträger Erdgas leicht

Grundrisse

Wie können wir Ihnen behilflich sein?

Herzlichen Dank für Ihre Anfrage.

Wir werden diese so schnell wie möglich bearbeiten.

Wie können wir Ihnen behilflich sein?
* Pflichtfeld

Vielen Dank für Ihre Zeit.

Ihre Anfrage wird bearbeitet…

Impressum

 www.guenterwolter.de wird bereitgestellt von:

Immobilien Günter Wolter e.K., Inhaber: Klaus Midden

Bahnhofstr. 24

D- 53925 Kall

Tel.: 02441 – 7777 820

E-Mail: kontakt@guenterwolter.de                  

Handelsregisternr.: HRA 3986, Amtsgericht Düren

Geschäftsinhaber: Klaus Midden

Steuernummer: 211/ 5070/ 4477     

Redaktionelle Verantwortlichkeit nach §55 des Staatsvertrages für Rundfunk und Telemedien (RStV):

Klaus Midden

Bahnhofstr. 24

D- 53925 Kall

Tel.: 02441/ 7777 820

Email: kontakt@guenterwolter.de          

Klaus Midden ist alleiniger Inhaber der auf dieser Website erhobenen Informationen. Ich erhebe nur Informationen, die mir helfen, den Service für Sie zu verbessern. Die Informationen werden in keinster Weise an andere weitergegeben, außer, wenn ich Maklerkollegen im Rahmen des Gemeinschaftsgeschäftes einschalte, um so schneller Ihre Wünsche realisieren zu können.

Inhaltlich Verantwortlicher gemäß § 6 MDStV: Klaus Midden

Verbraucherinformationen zur alternativen Streitschlichtung (Art 14 (1) ODR-VO und §36 VSBG).

Die Internetplattform der europäischen Union zur Online-Streitbeilegung sog.“OS-Plattform“) für Verbraucher ist unter dem folgendem Link erreichbar:

http://ec.europa.eu/consumers/odr

Unsere Email-Adresse finden Sie im Impressum. 

Die zuständige Aufsichtsbehörde für die Maklertätigkeit nach §34c der Gewerbeordnung ist: 

Stadt Köln, Amt für öffentliche Ordnung

Willy-Brandt Platz 3

50679 Köln

Telefon: 0221/ 221-0

Telefax: 0221/ 221-26449

http://www.stadt-koeln.de/service/adressen/gewerbeangelegenheiten

Erlaubnis zum Abschluss von Verträgen
über Grundstücke, grundstücksgleiche Rechte, Wohnräume, gewerbliche
Räume, Darlehen; den Erwerb von Anteilscheinen einer Kapitalanlageges.,
den Erwerb von sonstigen öffentlich angebotenen Vermögensanlagen, die
für gemeinsame Rechnung der Anleger verwaltet werden, den Erwerb von
öffentl. angebotenen Anteilen an einer Kapitalgesellschaft oder
Kommanditgesellschaft, und von verbrieften Forderungen gegen eine
Kapitalges. oder Kommanditges.; Bauvorhaben als Bauherr im eigenen Namen
für eigene/fremde Rechnung vorzubereiten/durchzuführen unter Verwendung
von Vermögenswerten von Erwerbern, Mietern, Pächtern, sonstigen
Nutzungsberechtigten, von Bewerbern um Erwerbs- oder Nutzungsrechte.

Weiterhin:

Verwaltung
von Grundbesitz und Grundstückseigentum, Beteiligungen, Vermittlung von
Versicherungen, in- und ausländischen. Investmentfonds zu verändern,
zu ergänzen, zu löschen oder die Veröffentlichung zeitweise oder
endgültig einzustellen.

Erlaubnis- und Registrierung als Immobiliendarlehensvermittler (§34i Abs. 1 S. 1 GewO) und Honorar-Immobiliendarlehensberater (§34i Abs. 5 GewO): 

Registrierungsnummer: D- W – 142- 2833 – 46

http://www.vermittlerregister.info/

Name: Klaus Midden

Aufsichtsbehörde:    

Industrie- und Handelskammer zu Köln

Unter Sachsenhausen 10-26

50677 Köln

Telefon: 0221/ 1640-0

Telefax: 0221/ 1640-129

http://www.ihk-koeln.de

Mitgliedschaft:     

Industrie- und Handelskammer Aachen
Theaterstraße 6 – 10 

52062 Aachen

Telefon: +49 241 4460-0

Email: info@aachen-ihk.de

Berufsrechtliche Regelungen     

– §34c GewO

– §34i GewO

– ImmVermV 

Die berufsrechtlichen Regelungen können über die vom Bundesministerium der Justiz und der juris GmbH betriebenen Homepage:

http://www.gesetze-im-internet.de

eingesehen und abgerufen werden. 

Unseren Kundendienst für Ihre Fragen oder Reklamationen erreichen Sie:

Werktags: 09:00 und 11:00 Uhr

Tel.: 02241 / 7777420

Email: kontakt@guenterwolter.de

Keine Abmahnung ohne vorherigen Kontakt. 

Sollte Inhalt oder Gestaltung einzelner Seiten oder Teile dieses Onlineportals fremde Rechte Dritter oder gesetzliche Bestimmungen verletzen oder anderweitig in irgendeiner Form wettbewerbsrechtliche Probleme hervorbringen, so bitten wir unter Berufung auf § 8 Abs. 4 UWG /a um eine angemessene, ausreichend erläuternde Nachricht ohne Kostennote. Dennoch von Ihnen ohne vorherige Kontaktaufnahme ausgelöste Kosten werden wir vollumfänglich zurückweisen und möglicherweise Gegenklage wegen Verletzung der vorgenannter Bestimmungen einreichen.

Wir garantieren, dass die zu Recht beanstandeten Passagen oder Teile dieser Webseiten in angemessener Frist entfernt bzw. den rechtlichen Vorgaben umfänglich angepasst werden, ohne dass von Ihrer Seite die Einschaltung eines Rechtsbeistandes erforderlich ist.

Rechtliche Hinweise:
Haftungsausschluss nach § 5 TDG
 
Inhalt des Onlineangebotes
Immobilien Günter Wolter e.K. übernimmt keinerlei Gewähr für die Aktualität, Korrektheit, Vollständigkeit oder Qualität der bereitgestellten Informationen. Haftungsansprüche gegen Immobilien Günter Wolter e.K., welche sich auf Schäden materieller oder ideeller Art beziehen, die durch die Nutzung oder Nichtnutzung der dargebotenen Informationen bzw.
durch die Nutzung fehlerhafter und unvollständiger Informationen verursacht wurden sind grundsätzlich ausgeschlossen, sofern seitens Immobilien Günter Wolter e.K. kein nachweislich vorsätzliches oder grob fahrlässiges Verschulden vorliegt. Alle Angebote sind freibleibend und unverbindlich. Immobilien Günter Wolter e.K. behält es sich ausdrücklich vor, Teile der Seiten oder das gesamte Angebot ohne gesonderte Ankündigung zu verändern, zu ergänzen, zu löschen oder die Veröffentlichung zeitweise oder endgültig einzustellen.

Inhalt der Internetpräsenz:
Immobilien Günter Wolter e.K. übernimmt keinerlei Gewähr für die Aktualität, Korrektheit, Vollständigkeit oder Qualität der bereitgestellten Informationen. Haftungsansprüche gegen Immobilien Günter Wolter e.K., welche sich auf Schäden materieller oder ideeller Art beziehen, die durch die Nutzung oder Nichtnutzung der dargebotenen Informationen bzw.
durch die Nutzung fehlerhafter und unvollständiger Informationen verursacht wurden sind grundsätzlich ausgeschlossen, sofern von Immobilien Günter Wolter e.K. kein nachweislich vorsätzliches oder grob fahrlässiges Verschulden vorliegt. Alle Angebote sind freibleibend und unverbindlich. Immobilien Günter Wolter e.K. behält es sich ausdrücklich vor, Teile der Seiten oder das gesamte Angebot ohne gesonderte Ankündigung zu verändern, zu ergänzen, zu löschen oder die Veröffentlichung zeitweise oder endgültig einzustellen.

Hinweis zur Problematik externer Links:
Klaus Midden ist als Inhaltsanbieter für die „eigenen Inhalte“, die  Immobilien Günter Wolter e.K. zur Nutzung bereithält, nach den allgemeinen Gesetzen verantwortlich. 

Für fremde Inhalte (in dieser Internetpräsenz eingefügte Hyperlinks bzw. Querverweise auf Inhalte anderer Anbieter) ist Immobilien Günter Wolter e.K. nur dann verantwortlich, wenn Immobilien Günter Wolter e.K. von ihnen (d.h. auch von einem rechtswidrigen bzw. strafbaren Inhalt) positive Kenntnis hat und es  Immobilien Günter Wolter e.K. technisch
möglich und zumutbar ist, deren Nutzung zu verhindern. Hyperlinks sind naturgemäß dynamische Verweise, deren fremden Inhalt bei erstmaliger Verwendung dahingehend überprüft wurde, ob durch sie eine mögliche zivilrechtliche oder strafrechtliche Verantwortlichkeit ausgelöst werden könnte. Immobilien Günter Wolter e.K. ist aber nicht
dazu verpflichtet, die Inhalte, auf die Immobilien Günter Wolter e.K. innerhalb dieser Seiten verweist, ständig auf Veränderungen zu überprüfen, die eine Verantwortlichkeit neu begründen könnten. Erst wenn  Immobilien Günter Wolter e.K. feststellen sollte oder von anderen darauf hingewiesen wird, dass ein konkretes Angebot, zu dem  Immobilien
Günter Wolter e.K. einen Link bereitgestellt hat, eine zivil- oder strafrechtliche Verantwortlichkeit auslöst, wird Immobilien Günter Wolter e.K. den Verweis auf dieses Angebot aufheben, soweit Immobilien Günter Wolter e.K. dies technisch möglich und zumutbar ist. Die technische Möglichkeit und Zumutbarkeit wird nicht dadurch beeinflusst,
dass auch nach Unterbindung des Zugriffs von dieser Internetpräsenz von anderen Servern aus auf das rechtswidrige oder strafbare Angebot zugegriffen werden kann.

Personenbezogene Daten:
Innerhalb dieser Internetpräsenz besteht die Möglichkeit, Immobilien Günter Wolter e.K. personenbezogene Daten zu übermitteln. „Personenbezogene Daten“ sind Informationen, die genutzt werden können, um Ihre Identität zu erfahren. Darunter fallen Informationen wie Ihren Namen, Ihre Adresse, Postanschrift, Telefonnummer, e – Mail-Adresse.

Hinsichtlich Ihrer personenbezogenen Daten weist  Immobilien Günter Wolter e.K. gemäß EU DS-GVO darauf hin, dass diese nach Maßgabe der anwendbaren Datenschutzbestimmungen gespeichert und/oder übertragen werden. Im übrigen werden personenbezogene Daten absolut vertraulich behandelt und nur mit gesonderter Zustimmung an Dritte weitergeleitet.

Immobilien Günter Wolter e.K. weist Sie ausdrücklich darauf hin, dass der Datenschutz in offenen Netzen wie dem Internet nach dem derzeitigem Stand der Technik nicht vollständig gewährleistet werden kann. 

Immobilien Günter Wolter e.K. weiß Ihr entgegen gebrachtes Vertrauen zu schätzen
und wird äußerste Sorgfalt walten lassen, um Ihre persönlichen Angaben zu schützen. Wenn Sie Fragen haben, können Sie sich auch direkt an Immobilien Günter Wolter e.K. wenden.  
e – mail:  kontakt@guenterwolter.de, Tel. 02441 – 7777820
 
Urheber- und Kennzeichenrecht:

Immobilien Günter Wolter e.K. ist bestrebt, die Urheberrechte der verwendeten Grafiken, Tondokumente, Videosequenzen und Texte zu beachten, selbst erstellte Grafiken, Tondokumente, Videosequenzen und Texte zu nutzen oder auf lizenzfreie Grafiken, Tondokumente, Videosequenzen und Texte zurückzugreifen. Alle innerhalb des Internetangebotes genannten und ggf. durch Dritte geschützten Marken- und Warenzeichen unterliegen uneingeschränkt den Bestimmungen des jeweils gültigen Kennzeichenrechts und den Besitzrechten der jeweiligen eingetragenen Eigentümer. Allein aufgrund der bloßen Nennung ist nicht der Schluß zu ziehen, dass Markenzeichen nicht durch Rechte Dritter geschützt sind! Das Copyright für veröffentlichte, von Immobilien Günter Wolter e.K. selbst erstellte Objekte bleibt allein bei Immobilien Günter Wolter e.K. Eine Vervielfältigung oder Verwendung solcher Grafiken, Tondokumente, Videosequenzen und Texte in anderen elektronischen oder gedruckten Publikationen ist ohne ausdrückliche Zustimmung durch  Immobilien Günter Wolter e.K. nicht gestattet.
 
Disclaimer
 
Das Landgericht Hamburg hat mit Urteil vom 12.05.1998 (AZ: 312 O 85/98) entschieden, dass der Betreiber einer Internetseite durch die Anbringung eines Links die Inhalte der gelinkten Seite ggf. mit zu verantworten hat. Dies kann – so das Landgericht – nur dadurch verhindert werden, dass man sich ausdrücklich von diesen Inhalten distanziert. Für alle auf
unserer Internetseite befindlichen Links erklären wir ausdrücklich, dass wir keinerlei Einfluss auf die Gestaltung und die Inhalte der gelinkten Seiten besitzen.

Deshalb distanzieren wir uns hiermit ausdrücklich von allen Inhalten aller gelinkten Seiten auf dieser gesamten Homepage inklusive aller Unterseiten. Ebenso distanzieren wir uns ausdrücklich von Beiträgen Dritter in den Online-Foren sowie von Inhalten dort gelinkter Seiten. Diese Erklärung gilt für alle auf dieser Homepage angebrachten Links und
für alle Inhalte der Seiten, zu denen Links führen.
 
Datenschutzerklärung für die Nutzung von Facebook-Plugins (Like-Button)
Auf unseren Seiten sind Plugins des sozialen Netzwerks Facebook, 1601 South
California Avenue, Palo Alto, CA 94304, USA integriert. Die Facebook-Plugins erkennen Sie an dem Facebook-Logo oder dem „Like-Button“ („Gefällt mir“) auf unserer Seite. Eine Übersicht über die Facebook-Plugins finden Sie hier: http://developers.facebook.com/docs/plugins/ Wenn Sie unsere Seiten besuchen, wird über das Plugin eine direkte Verbindung zwischen Ihrem Browser und dem Facebook-Server hergestellt. Facebook erhält dadurch die Information, dass Sie mit Ihrer IP-Adresse unsere Seite besucht haben.
Wenn Sie den Facebook „Like-Button“ anklicken während Sie in Ihrem Facebook-Account eingeloggt sind, können Sie die Inhalte unserer Seiten auf Ihrem Facebook-Profil verlinken. Dadurch kann Facebook den Besuch unserer Seiten Ihrem Benutzerkonto zuordnen. Wir weisen darauf hin, dass wir als Anbieter der Seiten keine Kenntnis vom Inhalt der übermittelten Daten sowie deren Nutzung durch Facebook erhalten. Weitere
Informationen hierzu finden Sie in der Datenschutzerklärung von facebook
unter http://de-de.facebook.com/policy.php

Wenn
Sie nicht wünschen, dass Facebook den Besuch unserer Seiten Ihrem
Facebook-Nutzerkonto zuordnen kann, loggen Sie sich bitte aus Ihrem
Facebook-Benutzerkonto aus.

Quelle: Facebook-Disclaimer von eRecht24.de

Rechtswirksamkeit:
Sofern
Teile oder einzelne Formulierungen dieses Textes der geltenden
Rechtslage nicht, nicht mehr oder nicht vollständig entsprechen sollten,
bleiben die übrigen Teile in ihrem Inhalt und ihrer Gültigkeit davon
unberührt.


Alle Informationen auf dieser Website Copyright 2023 von Immobilien Günter Wolter e.K., Inhaber Klaus Midden

Alle Rechte vorbehalten.

Impressum

Datenschutz bei Immobilien Günter Wolter e.K.,

Inhaber: Klaus Midden

Der Schutz Ihrer Privatsphäre ist für alle Mitarbeiter von Immobilien Günter Wolter e.K. von höchster Bedeutung.

Immobilienberatungen und Finanzierungsberatungen erfordern die Preisgabe sensibler Daten. Deshalb unternehmen wir höchste Anstrengungen, um Ihre persönlichen Daten zu schützen.

Wir haben ein umfassendes Datenschutzkonzept erarbeitet, an dem wir unsere Arbeitsabläufe und Datenverarbeitungsprozesse in Übereinstimmung mit den gesetzlichen Bestimmungen ausrichten. Wir möchten Sie mit diesem Dokument informieren, wie und wann wir Ihre personenbezogenen Daten im Zusammenhang mit der Nutzung unseres Angebotes verarbeiten.

Verantwortliche Stelle im Sinne der Datenschutzgesetzes ist:
Immobilien Günter Wolter e.K.
Klaus Midden
Bahnhofstr. 24
53925 Kall
Telefon: 02441 – 7777 820
E-Mail-Adresse:   immobilien@guenterwolter.de

Beschwerdestelle für den Datenschutz NRW
Landesbeauftragte für Datenschutz und Informationsfreiheit
Nordrhein-Westfalen
Postfach 20 04 44
40102 Düsseldorf
Tel.: 0211/38424-0
Fax: 0211/38424-10
E-Mail: poststelle@ldi.nrw.de

Die Betreiber dieser Seiten nehmen den Schutz Ihrer persönlichen Daten sehr ernst. Wir behandeln Ihre personenbezogenen Daten vertraulich und entsprechend der gesetzlichen Datenschutzvorschriften sowie dieser Datenschutzerklärung.

ERFASSUNG ALLGEMEINER INFORMATIONEN
Wenn Sie auf unsere Webseite zugreifen, werden automatisch Informationen allgemeiner Natur erfasst. Diese Informationen (Server-Logfiles) beinhalten etwa die Art des Webbrowsers, das verwendete Betriebssystem, den Domainnamen Ihres Internet Service Providers und Ähnliches. Hierbei handelt es sich ausschließlich um Informationen, welche keine Rückschlüsse auf Ihre Person zulassen. Diese Informationen sind technisch notwendig, um von Ihnen angeforderte Inhalte von Webseiten korrekt auszuliefern und fallen bei Nutzung des Internets zwingend an. Anonyme Informationen dieser Art werden von uns statistisch ausgewertet, um unseren Internetauftritt und die dahinterstehende Technik zu optimieren.

Die Nutzung unserer Webseite ist in der Regel ohne Angabe personenbezogener Daten möglich. Soweit auf unseren Seiten personenbezogene Daten (beispielsweise Name, Anschrift oder E-Mail-Adressen) erhoben werden, erfolgt dies, soweit möglich, stets auf freiwilliger Basis. Diese Daten werden ohne Ihre ausdrückliche Zustimmung nicht an Dritte weitergegeben.
Wir weisen darauf hin, dass die Datenübertragung im Internet (z.B. bei der Kommunikation per E-Mail) Sicherheitslücken aufweisen kann. Ein lückenloser Schutz der Daten vor dem Zugriff durch Dritte ist nicht möglich.

SSL-VERSCHLÜSSELUNG
Um die Sicherheit Ihrer Daten bei der Übertragung zu schützen, verwenden wir dem aktuellen Stand der Technik entsprechende Verschlüsselungsverfahren (z. B. SSL) über HTTPS.

KOMMENTARFUNKTION
Wenn Nutzer Kommentare im Blog hinterlassen, werden neben diesen Angaben auch der Zeitpunkt ihrer Erstellung und der zuvor durch den Websitebesucher gewählte Nutzername gespeichert. Dies dient unserer Sicherheit, da wir für widerrechtliche Inhalte auf unserer Webseite belangt werden können, auch wenn diese durch Benutzer erstellt wurden.
KONTAKTFORMULAR
Treten Sie per E-Mail oder Kontaktformular mit uns in Kontakt, werden die von Ihnen gemachten Angaben zum Zwecke der Bearbeitung der Anfrage sowie für mögliche Anschlussfragen gespeichert.
LÖSCHUNG BZW. SPERRUNG DER DATEN
Wir halten uns an die Grundsätze der Datenvermeidung und Datensparsamkeit. Wir speichern Ihre personenbezogenen Daten daher nur so lange, wie dies zur Erreichung der hier genannten Zwecke erforderlich ist oder wie es die vom Gesetzgeber vorgesehenen vielfältigen Speicherfristen vorsehen. Nach Fortfall des jeweiligen Zweckes bzw. Ablauf dieser Fristen werden die entsprechenden Daten routinemäßig und entsprechend den gesetzlichen Vorschriften gesperrt oder gelöscht.

VERWENDUNG VON GOOGLE MAPS
Diese Webseite verwendet Google Maps API, um geographische Informationen visuell darzustellen. Bei der Nutzung von Google Maps werden von Google auch Daten über die Nutzung der Kartenfunktionen durch Besucher erhoben, verarbeitet und genutzt. Nähere Informationen über die Datenverarbeitung durch Google können Sie den Google-Datenschutzhinweisen entnehmen. Dort können Sie im Datenschutzcenter auch Ihre persönlichen Datenschutz-Einstellungen verändern.

SOCIAL PLUGINS
Auf unseren Webseiten werden Social Plugins der unten aufgeführten Anbietereingesetzt. Die Plugins können Sie daran erkennen, dass sie mit dem entsprechenden Logo gekennzeichnet sind.
Über diese Plugins werden unter Umständen Informationen, zu denen auch personenbezogene Daten gehören können, an den Dienstebetreiber gesendet und ggf. von diesem genutzt. Wir verhindern die unbewusste und ungewollte Erfassung und Übertragung von Daten an den Diensteanbieter durch eine 2-Klick-Lösung. Um ein gewünschtes Social Plugin zu aktivieren, muss dieses erst durch Klick auf den entsprechenden Schalter aktiviert werden. Erst durch diese Aktivierung des Plugins wird auch die Erfassung von Informationen und deren Übertragung an den Diensteanbieter ausgelöst. Wir erfassen selbst keine personenbezogenen Daten mittels der Social Plugins oder über deren Nutzung.
Wir haben keinen Einfluss darauf, welche Daten ein aktiviertes Plugin erfasst und wie diese durch den Anbieter verwendet werden. Derzeit muss davon ausgegangen werden, dass eine direkte Verbindung zu den Diensten des Anbieters ausgebaut wird sowie mindestens die IP-Adresse und gerätebezogene Informationen erfasst und genutzt werden. Ebenfalls besteht die Möglichkeit, dass die Diensteanbieter versuchen, Cookies auf dem verwendeten Rechner zu speichern. Welche konkreten Daten hierbei erfasst und wie diese genutzt werden, entnehmen Sie bitte den Datenschutzhinweisen des jeweiligen Diensteanbieters. Hinweis: Falls Sie zeitgleich bei Facebook angemeldet sind, kann Facebook Sie als Besucher einer bestimmten Seite identifizieren.
Wir haben auf unserer Website die Social-Media-Buttons folgender Unternehmen eingebunden:
Facebook Inc. (1601 S. California Ave – Palo Alto – CA 94304 – USA)
Twitter Inc. (795 Folsom St. – Suite 600 – San Francisco – CA 94107 – USA) Whatsapp
IHRE RECHTE AUF AUSKUNFT, BERICHTIGUNG, SPERRE, LÖSCHUNG UND WIDERSPRUCH
Sie haben das Recht, jederzeit Auskunft über Ihre bei uns gespeicherten personenbezogenen Daten zu erhalten. Ebenso haben Sie das Recht auf Berichtigung, Sperrung oder, abgesehen von der vorgeschriebenen Datenspeicherung zur Geschäftsabwicklung, Löschung Ihrer personenbezogenen Daten. Bitte wenden Sie sich dazu an unseren Datenschutzbeauftragten. Die Kontaktdaten finden Sie ganz unten.
Damit eine Sperre von Daten jederzeit berücksichtigt werden kann, müssen diese Daten zu Kontrollzwecken in einer Sperrdatei vorgehalten werden. Sie können auch die Löschung der Daten verlangen, soweit keine gesetzliche Archivierungsverpflichtung besteht. Soweit eine solche Verpflichtung besteht, sperren wir Ihre Daten auf Wunsch.
Sie können Änderungen oder den Widerruf einer Einwilligung durch entsprechende Mitteilung an uns mit Wirkung für die Zukunft vornehmen.

ÄNDERUNG UNSERER DATENSCHUTZBESTIMMUNGEN
Wir behalten uns vor, diese Datenschutzerklärung gelegentlich anzupassen, damit sie stets den aktuellen rechtlichen Anforderungen entspricht oder um Änderungen unserer Leistungen in der Datenschutzerklärung umzusetzen, z. B. bei der Einführung neuer Services. Für Ihren erneuten Besuch gilt dann die neue Datenschutzerklärung.

FRAGEN ZUM DATENSCHUTZ
Wenn Sie Fragen zum Datenschutz haben, schreiben Sie uns bitte eine E-Mail oder wenden Sie sich direkt an

Immobilien Günter Wolter e.K.
Klaus Midden

Bahnhofstr.24
53925 Kall
Tel. 02441 – 7777 820
E – mail: immobilien@guenterwolter.de